
Building in the historic center of Setubal with building permit
Properties







Information
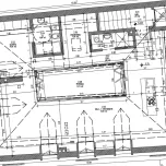
In the heart of the historic center of Setúbal, a building with 3 floors with an approved building project for renovation.
The location is its great strength, next to Praça Marquês de Pombal, 5 minutes walk from the Livramento market and the riverside restaurants and all stores.
The building has a double orientation south and west and the approval of the project in the Municipality includes the creation of 4 apartments of type T1.
Areas:
Ground floor: 123.23m2
Total gross construction area: 324.46m2
Gross Private Area: 299.99 m2; divided as following :
- RC garages: 46.50 m2 (with alternative to move to T1)
- RC T1: 54.52m2
- 1st T1 left: 59.09m2
- 1st T1 right: 53.47m2
- 2nd T1 bis: 86.41 m2 (10.15 m2 open terrace-patio)
Possibility of transforming the garage into T1 with request and agreement of the Municipality and within the framework of modification of the approved project.
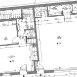
3D photos of the top floor
The city of Setúbal, due to its medium size, offers an excellent quality of life to its inhabitants.
Its proximity to the Lisbon (30 minutes) makes it a good option for those who choose to escape from living in the big urban center, and continuing to enjoy the same as what the city has to offer.
Setúbal offers a great cultural variety, and its strong and ancient connection to the sea makes it an excellent gastronomic region rich in fish. This is proved by the famous Mercado do Livramento included in the list of the best in the world in fish, which also includes the "Tsukiji" of Tokyo in Japan. Without a doubt a pleasant and calm area to live, literally with everything at the door.
Good beaches (Arrabida, Gallops, Figueirinha) are just 10 minutes away by car.
Région
Lisbonne et environs
Type de bien
Commercial
Atouts
Centre villeBon potentiel locatifA rénover
Prix
€€
